AMANDA CLIPPER
INTERIOR DESIGN PORTFOLIO
ADRIAN, MI
THE BLACK SWAN
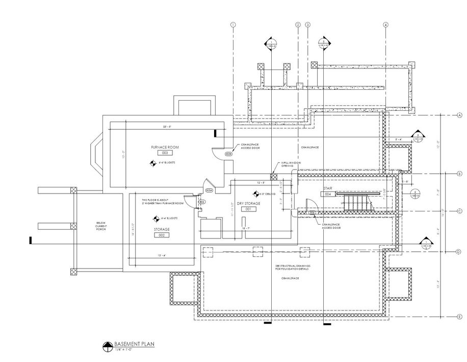
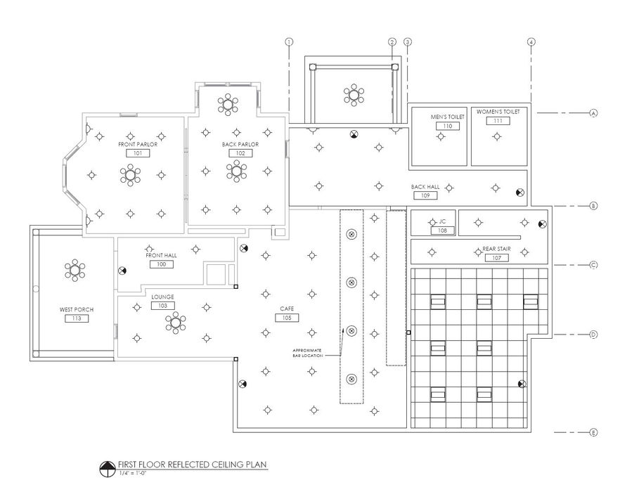
What used to be a child care center is being renovated to be a coffee shop and bar. Located between Battery Warehouse and Taco Bell, this Victorian building will have an addition on the back to serve as the new entrance to the shop as well as house the bathrooms and commercial kitchen. The addition will continue the Victorian architectural details to maintain the uniformity of the exterior. Structural issues of the building have been addressed and corrected to meet the code standards of a commercial building.

EXISTING
RESPONSIBILITIES INCLUDED:
-
Document existing building conditions through field measurements
-
Draw existing building conditions in Revit
-
Create demolition drawings in Revit
-
Set up construction drawing sheets in Revit
-
Design layouts for furniture and restroom
-
Assist with designing building addition and bar
-
Coordinate electrical drawings with construction drawings
-
Communicate with the contractor and consultants

























